Venta PH 2 Ambientes con patio y terraza sin expensas. Villa Urquiza USD 105.000 - EN VENTA
Descripción
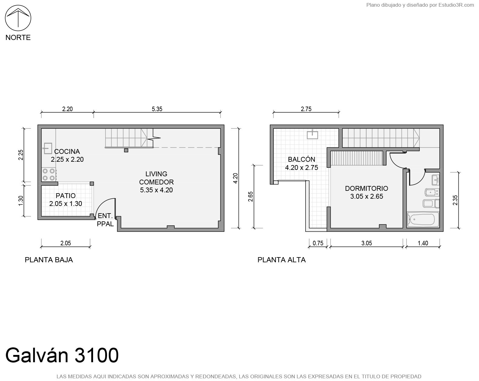
PH de 2 ambientes en Villa Urquiza con patio y terraza propia, Sin expensas. complejo de 5 unidades. Living comedor amplio con cocina integrada y buena ventilación, ya que cuenta con patio en la planta baja. En la planta alta se encuentra el dormitorio con salida a la terraza y baño completo. Luminoso y silencioso. Cercano a colegios, espacios verdes y medios de transporte. Zona muy tranquila y con facilidad de accesos a General Paz y Panamericana. Toda la información del aviso, incluyendo medidas, precio, impuestos, servicios, etc. son estimativos, sujetos a modificación y no vinculantes, según lo dispuesto en el art. 973, Cód. Civ. y Com.
| Detalles | |
|---|---|
| Código | KP487445 |
| Categoría | PH |
| Estado | Activa |
| Ubicación | Galvan 3100 |
| Barrio | Villa Urquiza |
| Localidad | Capital Federal, Capital Federal |
| Tipo de operación | En venta |
| Apto credito | Sí |
| Ambientes | 2 |
| Dormitorios | 1 |
| Baños | 1 |
| Pisos en el edificio | 1 |
| Mts totales (mt²) | 56.51 |
| Mts cubiertos (mt²) | 46.7 |
| Mts no cubiertos (mt²) | 8.29 |
| Año de construcción | 2003 |
| Expensas | ars 0.00 |