VENTA. PISO 3 DORMITORIOS CON DEPENDENCIA.BALCON Y PATIO. MAURE Y MIGUELETES USD 429.000 - EN VENTA
Descripción
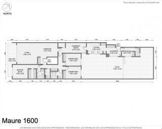
Piso de 3 dormitorios con dependencia de servicio, balcón corrido al frente y patio propio de 87 m2. Amplio living comedor con salida a balcón Dormitorio principal en suite con vestidor con salida al balcón al frente Dos dormitorios con placards con salida al patio. Segundo baño completo y toilette de recepción Cocina con doble mesada y comedor diario, lavadero independiente y dependencia de servicio. Doble circulación Agua caliente por termotanque. Calefacción por losa radiante central Estado: a modernizar Edificio de categoría de 10 pisos. Encargado y seguridad presencial 24 hs Cochera fija y baulera Edificio con grupo electrógeno Entrada principal con palier privado. Entrada de servicio con palier compartido con otro departamento. Inmejorable ubicación en La Imprenta. Maure y Migueletes A una cuadra de Av. Del Libertador, próximo a los Bosques de Palermo, el Hipódromo de Palermo y la cancha de Polo A 2 cuadras del Boulevard Olleros. Zona trendy y verde, rodeeado de prestigiosos colegios, bares y restaurantes de moda. Cumple ley de Accesibilidad Toda la información del aviso, incluyendo medidas, precio, impuestos, servicios, etc. son estimativos, sujetos a modificación y no vinculantes, según lo dispuesto en el art. 973, Cód. Civ. y Com.
| Detalles | |
|---|---|
| Código | KP445920 |
| Categoría | Departamentos |
| Estado | Activa |
| Ubicación | Maure 1600 |
| Zona | La Imprenta |
| Barrio | Palermo |
| Localidad | Capital Federal, Capital Federal |
| Tipo de operación | En venta |
| Ambientes | 4 |
| Dormitorios | 3 |
| Baños | 4 |
| Baños de servicio | 1 |
| Estacionamientos | 1 |
| Piso | 1 |
| Pisos en el edificio | 10 |
| Mts totales (mt²) | 241.60 |
| Mts cubiertos (mt²) | 144.27 |
| Mts no cubiertos (mt²) | 94.02 |
| Año de construcción | 1977 |
| Expensas | ars 780000.00 |