PH APTO COMERCIAL 2 AMB + ESCRITORIO Y GARAJE- s/ expensas CABALLITO USD 96.800 - EN VENTA
Descripción
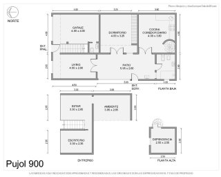
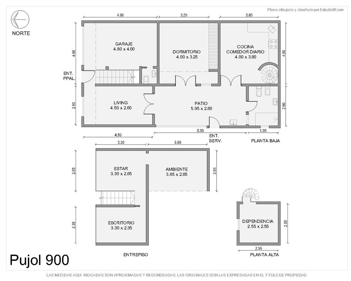
PH de 2 ambientes y 3 entrepisos, baño completo y toilette, con patio cubierto, y cochera cubierta. Ideal para reciclar. Sin expensas! Anteriormente era 3 ambientes, pero se ha modificado para colocar la cocina. Living (con entrepiso), cocina-comedor (con baulera o altillo) y dormitorio con placard (con entrepiso). Baño principal y cocina refaccionados a nuevo. A los entrepisos se accede por escalera de madera que se encuentra en la entrada de la propiedad. El entrepiso del garaje y del living son alfombrados y se encuentran conectados entre sí. Acceso por el frente, o por el PH. Excelente ubicación. - - - Toda la información del aviso, incluyendo medidas, precio, impuestos, servicios, etc. son estimativos, sujetos a modificación y no vinculantes, según lo dispuesto en el art. 973, Cód. Civ. y Com. Toda la información del aviso, incluyendo medidas, precio, impuestos, servicios, etc. son estimativos, sujetos a modificación y no vinculantes, según lo dispuesto en el art. 973, Cód. Civ. y Com.
| Detalles | |
|---|---|
| Código | KP440436 |
| Categoría | Departamentos |
| Estado | Vendida |
| Ubicación | Pujol 918 |
| Zona | Caballito |
| Barrio | Caballito |
| Localidad | Capital Federal, Capital Federal |
| Tipo de operación | En venta |
| Ambientes | 2 |
| Dormitorios | 1 |
| Baños | 2 |
| Estacionamientos | 1 |
| Mts totales (mt²) | 84.30 |
| Mts cubiertos (mt²) | 69.4 |
| Mts no cubiertos (mt²) | 4.8 |
| Año de construcción | 1968 |