Departamento en Venta en Las Cañitas, Capital Federal, Buenos Aires USD 260.000 - EN VENTA
Descripción
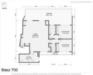
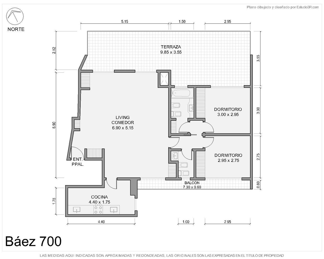
Departamento de 3 ambientes con balcón terraza al frente Piso alto. Todo luz y ventilación cruzada Amplio living comedor con salida al balcón aterrazado. Pisos de madera en todo el departamento. Caldera dual para radiadores y agua caliente. Equipo de aire acondicionado split en living comedor y dormitorio principal. Cocina separada con conexión para lavarropas. Dormitorio principal al frente en suite. 2do dormitorio al contrafrente. Toilette de recepción. Baulera (cuarto con llave) en último piso. Cochera fija cubierta en primer subsuelo. Se accede con montautos. Excelente ubicación en el barrio de las Cañitas en Palermo. A 2 cuadras del Solar de la Abadía, a una cuadra de la avenida Luis María Campos y a 4 cuadras de la Av.Del Libertador Rodeado de locales gastronómicos, colegios, servicios y excelente conectividad con los medios de transporte. Edificio con muy buen mantenimiento con bajas expensas. Expensas (octubre 2024): $ 99.500 AYSA (octubre 2024) : $ 29.100 ABL (octubre 2024) : $ 41.000 ... - - Toda la información del aviso, incluyendo medidas, precio, impuestos, servicios, etc. son estimativos, sujetos a modificación y no vinculantes, según lo dispuesto en el art. 973, Cód. Civ. y Com. Toda la información del aviso, incluyendo medidas, precio, impuestos, servicios, etc. son estimativos, sujetos a modificación y no vinculantes, según lo dispuesto en el art. 973, Cód. Civ. y Com.
| Detalles | |
|---|---|
| Código | KP440378 |
| Categoría | Departamentos |
| Estado | Vendida |
| Ubicación | Baez 775 |
| Zona | Las Cañitas |
| Barrio | Las Cañitas |
| Localidad | Capital Federal, Capital Federal |
| Tipo de operación | En venta |
| Ambientes | 3 |
| Dormitorios | 2 |
| Baños | 2 |
| Estacionamientos | 1 |
| Piso | 9 |
| Mts totales (mt²) | 109.08 |
| Mts cubiertos (mt²) | 73.41 |
| Mts no cubiertos (mt²) | 24.02 |
| Año de construcción | 1976 |
| Expensas | usd 99500.00 |