VENTA. TRES AMBIENTES CON TOILETTE. BRASIL Y DEFENSA. SAN TELMO USD 120.000 - EN VENTA
Descripción
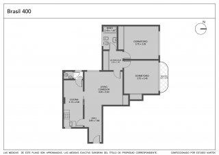
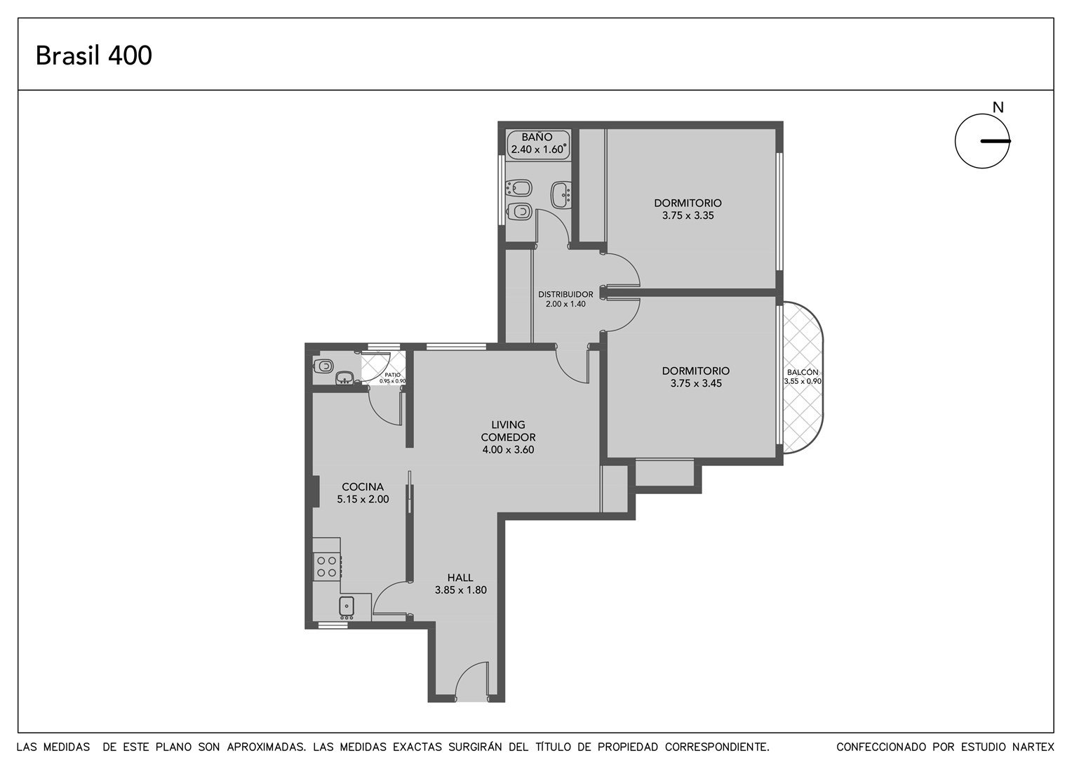
Departamento de 3 ambientes con toilette de recepción, cocina separada con conexión para lavarropas. Dos dormitorios , el principal con salida a balcón al frente sobre calle Brasil. Living comedor con entrepiso (espacio de guardado) Pisos hidrolaqueados a nuevo, Excelente estado de conservación. Muy luminoso y con ventilación cruzada. Apto crédito. Edificio racionalista en esquina emblemática en el barrio de San Telmo. Brasil y Defensa, frente al Parque Lezama. Ascensor principal y de servicio. Edificio apto profesional para propietarios. ... - - Toda la información del aviso, incluyendo medidas, precio, impuestos, servicios, etc. son estimativos, sujetos a modificación y no vinculantes, según lo dispuesto en el art. 973, Cód. Civ. y Com. Toda la información del aviso, incluyendo medidas, precio, impuestos, servicios, etc. son estimativos, sujetos a modificación y no vinculantes, según lo dispuesto en el art. 973, Cód. Civ. y Com.
| Detalles | |
|---|---|
| Código | KP429835 |
| Categoría | Departamentos |
| Estado | Vendida |
| Ubicación | Brasil 400 |
| Zona | San Telmo |
| Barrio | San Telmo |
| Localidad | Capital Federal, Capital Federal |
| Tipo de operación | En venta |
| Apto credito | Sí |
| Ambientes | 3 |
| Dormitorios | 2 |
| Baños | 1 |
| Piso | 2 |
| Mts totales (mt²) | 73.64 |
| Mts cubiertos (mt²) | 68.11 |
| Año de construcción | 1925 |
| Expensas | usd 176000.00 |